01A PROJEKT

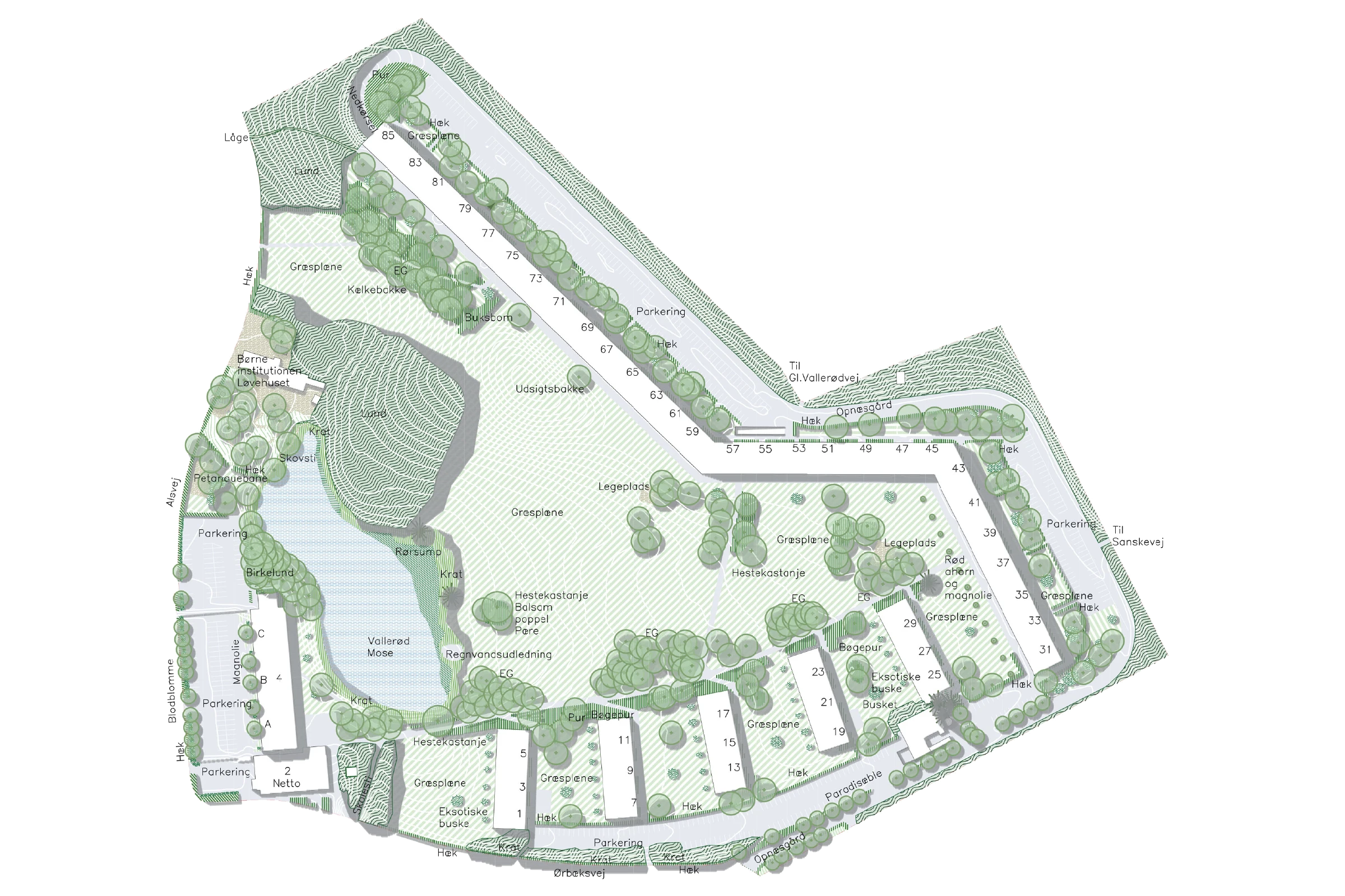
Opnæsgård

YDELSER

Baselineregistrering, driftsanbefalinger

ARTER

STØRRELSE

14.000 kvm

HVOR

Hørsholm, Danmark

HVORNÅR

2023

KUNDE

Boligforeningen Opnæsgård

SAMMEN MED

Boligforeningen Opnæsgård oplever, som de fleste andre boligforeninger en stigende efterspørgsel på for eksempel biodiversitet. Den øgede folkeoplysning om naturens sværdkamp mod fremskridtet og den store tilbagegang af arter på verdensplan, giver flere lyst til aktivt at gøre noget, og for en boligforening med hele 14 hektar vil det føles oplagt, at tage initiativ til, at ændre lidt på de mange kvadratmeter græsplæne til livgivende områder for nektarsøgende fauna.
MeMe har udarbejdet en rapport, der gennemgår Opnæsgårds udearealer for at belyse de eksisterende forholds kvaliteter og potentialer, samt at se, hvordan området er forbundet i en større skala – i en meget fragmenteret natur kan alle grønne arealer være med til, at gøre en forskel.
“Udbyttet af registreringen og analysen af Opnæsgård er forslag til en bevarende landskabsplan, der renoverer den eksisterende beplantning, men med nye enkle tidssvarende tiltag, som ikke går på kompromis med stedets ånd.”